Haslemere

Guide Price £175,000

This ground floor one-bedroom apartment is in a quiet corner of Hammer, just a stone’s throw away from Haslemere. It is ideal for first-time buyers, downsizers, single professional occupants, or those looking for an investment. Located on the edge of the South Downs National Park, this end-of-chain apartment is a must-see for anyone.

Request a viewing of this property

Virtual Tour

1

bedroom

1

bathroom

2

receptions

Features

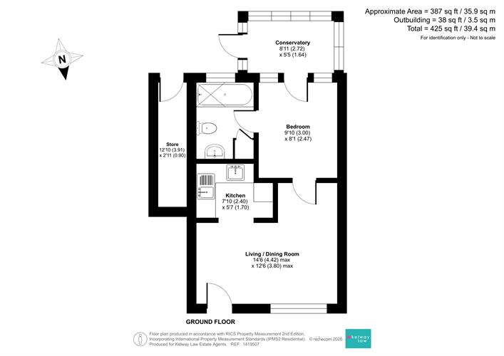
  • Ground floor maisonette
  • Sitting/living room
  • One bedroom
  • Kitchen
  • Bathroom
  • Sun room
  • Small patio area
  • Parking for one vehicle
  • NO ONWARDS CHAIN
  • Excellent first-time buyer or investment opportunity

Brochure (PDF)

Description

This ground floor one-bedroom apartment is in a quiet corner of Hammer, just a stone’s throw away from Haslemere. It is ideal for first-time buyers, downsizers, single professional occupants, or those looking for an investment. Located on the edge of the South Downs National Park, this end-of-chain apartment is a must-see for anyone.

The secure apartment is entered through its own front door the front aspect sitting room. The sitting room provides a great space and is open plan to the kitchen with eye and base level units, a fitted electric hob and oven with an extractor canopy over, space for a fridge/freezer and space and plumbing for a washing machine.

The bedroom is at the rear of the property and has space for a double bed and access to the en-suite modern bathroom with a panelled bath with shower over, vanity wash basin with cupboard under and a low level W.C.. From the bedroom there is a double-glazed sun room, which could be used as a study. A door gives you access to a small rear patio area with access to its own lockable store with power and a light, giving good storage for bicycles and equipment. There is parking at the rear of the property for one vehicle.

Additional Property Details:

Council Tax Band: B
Local Authority: Chichester
Services: Mains, Electric & Drainage
Tenure: Leasehold
Lease Length: TBA
Service Charge: TBA
Ground Rent: TBA

Hammer & Surroundings

Located on the edge of the South Downs National Park, Hammer is a small village on the outskirts of Haslemere. Within 1.5 miles of Haslemere’s mainline station and 2 miles of the A3 trunk road, Hammer is an ideal position for those wanting to enjoy a semi-rural position close to National Trust land whilst the convenience of travel links and town centre. Haslemere is a thriving market town and offers a wide and varied range of shopping facilities with many multiple and individual stores.

There is a vast array of restaurants catering for most tastes, a range of coffee houses and the town is ideally located for the commuter with fast links to the airports and a station on the Portsmouth Waterloo line giving access to London in approximately 55 minutes. Haslemere is particularly well served with schools that are within walking distance and recreational facilities include The Herons Leisure Centre with its squash courts, gym and swimming pools, and the South Coast is approximately 25 miles away.

Agents Note:

Whilst we endeavour to make our details accurate and reliable, if there is any point which is of particular importance to you, please contact this office, and we will be pleased to check the relevant information. Do so particularly if contemplating travelling some distance to view a property. The appliances mentioned have not been professionally tested.
EPC
Floor Plan

NOTE: These particulars are intended only as a guide to prospective Tenants to enable them to decide whether to make further enquiries with a view to taking up negotiations but they are otherwise not intended to be relied upon in any way for any purpose whatsoever and accordingly neither their accuracy nor the continued availability of the property is in any way guaranteed and they are furnished on the express understanding that neither the Agents nor the Vendors are to be or become under any liability or claim in respect of their contents. Any prospective Tenant must satisfy himself by inspection or otherwise as to the correctness of the particulars contained.